Sheraton
Исмајили, Азербеџан
Ентеријер и Пројектна Документација
О Пројекту
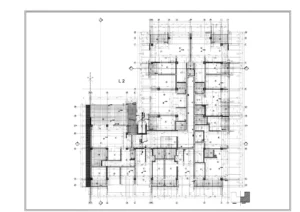
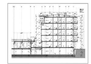
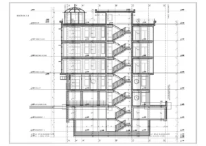
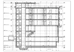
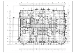
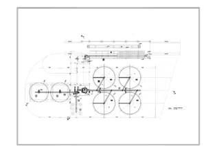
W-ING SOLUTIONS је учествовао у изради комплетног архитектонског и конструктивног пројекта за хотел Sheraton у Азербејџану. Овај амбициозни пројекат подразумевао је сарадњу са међународним партнерима и коришћење најсавременијих технолошких решења за изградњу и опремање хотела.
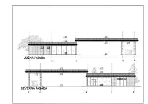
Хотел Sheraton представља један од најмодернијих хотела у региону, са акцентом на енергетску ефикасност и луксузан дизајн. Наш тим је радио на интеграцији иновативних решења за одрживост, укључујући оптимизацију система грејања и хлађења, као и примену висококвалитетних материјала који доприносе дуготрајности објекта.
Опсег радова:
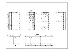
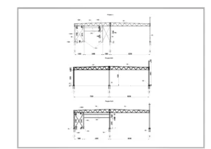
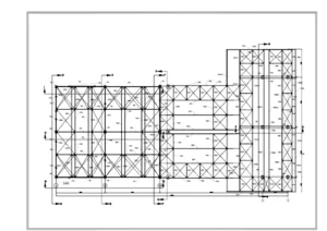
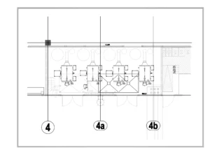
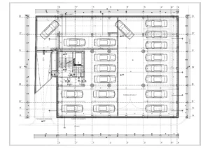
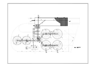
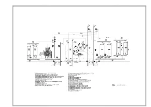
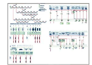
- Израда комплетне техничке и пројектне документације
- Детаљни прорачуни и симулације статичког оптерећења
- Оптимизација архитектонских и конструктивних решења
- Интеграција одрживих система у грађевинске радове
- Контрола трошкова и буџета током изградње
Резултати:
Захваљујући пажљивом планирању и детаљној изради пројектне документације, хотел Sheraton представља спој савремене архитектуре и функционалности, у складу са највишим стандардима. Овај пројекат је пример како се иновативне технолошке праксе могу успешно применити у грађевинској индустрији за стварање енергетски ефикасних и естетски угодних простора.
Галерија слика:
(Овде ћеш поставити галерију са фотографијама пројекта, укључујући рендере, планове, и фотографије завршеног објекта.)
Детаљи
| Локација | Исмајили, Азербеџан |
| Клијент | Sheraton хотел |
| Година реализације | 2013. |
| Услуге | Архитектонски и конструктивни пројекат, техничка документација |
| Величина | 5.50 acres |
















































